
| |||||||
| 取引種目 | 売買建物 | 問合せNo | 取引態様 | 仲介 | |||
|---|---|---|---|---|---|---|---|
| 西十一番町 (北園小・三本木中学区)、中古住宅! *只今申込手続中! |
|||||||
| 所在地 | 十和田市西十一番町29−46
| ||||||
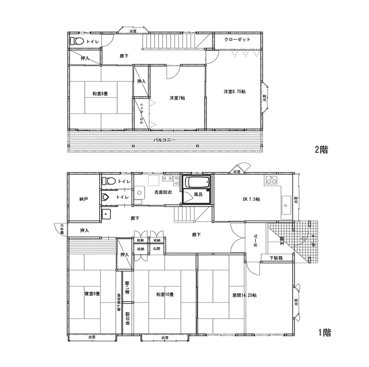
| 価 格 | 1,375万円 | 間取り | 6DK | ||||
| 交 通 | 市立中央病院まで約550m | ||||||
| 土地面積 | 489.59u (148.1坪) | 他、私道面積 | |
|---|---|---|---|
| 建物構造 | 木造亜鉛メッキ鋼板葺2階建 | 建物面積 | 175.55u (52.99坪) |
| 間取内訳 | 図面参照 | ||
| 接道状況 | 間口約18.5mが幅員約10.5mの公道に接している | ||
| 築年月日 | 平成9年1月 | 現 況 | |
| 引渡し時期 | いつでも可 | 駐車場 | 3台可 (1台 車庫) *駐車スペース限られる為、 必ず現地ご確認下さい。 |
| 土地権利 | 所有権 | 地 目 | 宅地 |
| 都市計画 | 非線引区域 | 用途地域 | 第一種住居地域 |
| 建ペイ率(%) | 60% | 容積率(%) | 200% |
| 学区(小) | 北園小学校 (約120m) | 学区(中) | 三本木中学校 (約950m) |
| ガ ス | プロパンガス | トイレ | 1階 / 小便器 洋式 水洗 ウォシュレット 2階 / 洋式 水洗 ウォシュレット |
| 備 考 | 付属建物(車庫/物置) / 木造亜鉛メッキ鋼板ぶき平屋建 / 22.08u(6.67坪) 平成30年1月 屋根塗装済! ビルトインシステムキッチン 浴室/ユニットバス(1坪タイプ) シャワー付洗面化粧台 洗面台 パネルヒーター(灯油)8台 灯油ボイラー シューズボックス 外側に水道有り 灯油ホームタンク(400ℓ) *現状での引渡しとなります。 |
||
| 取扱業者 |
有限会社サンポウ 青森県知事免許(11)第1973号 青森県十和田市西二十一番町24-21 TEL:0176-22-1726 FAX:0176-25-7271 koga@sanpoh.info |
||
|
| |||
![]() |
![]() |
![]() | ||
|
写真をクリックすると拡大表示します。お気軽にお問合せ下さい。
| ||||
|---|---|---|---|---|






















