
取引種目 | 売買建物 |
---|---|
問合せNo | |
取引態様 | 仲介 |
西一番町Ⅱ (北園小・三本木中学区)、DC-F(デザイナーズコンパクト・フラット)! *只今申込手続中! | |
所在地 | 十和田市西一番町61-3![]() |
価格 | 2,445万円 |
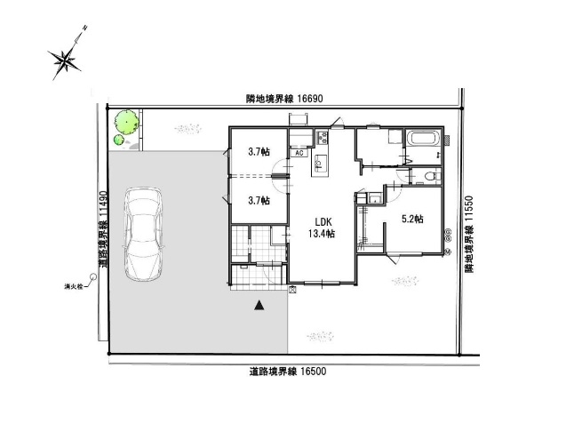
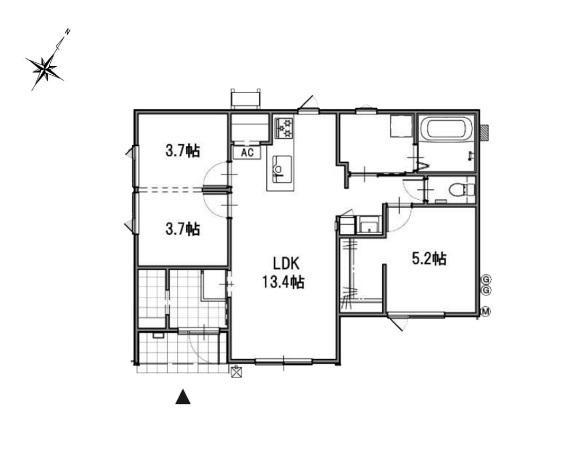
間取り | 3LDK |
交通 | 十和田市役所まで約350m |
土地面積 | 119.33㎡ (57.87坪) |
他、私道面積 | |
建物構造 | 2×4工法 平家建 |
建物面積 | 延床面積/64.79㎡ (19.61坪) 施工面積/68.24㎡ (20.64坪) |
間取内訳 | 図面参照 |
接道状況 | 幅員11m・5.9mの公道に接している |
築年月日 | 令和7年8月 完成 |
現況 | |
引渡時期 | いつでも可 |
駐車場 | 有 (コンクリート舗装) |
土地権利 | 所有権 |
地目 | 宅地 |
都市計画 | 非線引区域 |
用途地域 | 第一種住居地域 |
建ペイ率(%) | 70% |
容積率(%) | 200% |
学区(小) | 北園小学校 (約400m) |
学区(中) | 三本木学校 (約1.1km) |
ガス | プロパンガス |
トイレ | 洋式 水洗 ウォシュレット |
備考 | 高性能エアコン1台 ガス給湯器(省エネタイプ) シャワー付洗面化粧台 ビルトインシステムキッチン(食洗機付) カラーモニター付インターホン シューズクローク カーテンレール 浴室(追いだき機能付) 屋外用防水コンセント/EV・PHPV充電用屋外コンセント有り 外側に水道有り 郵便ポスト TVアンテナ 建築施工 ㈱ジェイホーム |
取扱業者 | 有限会社サンポウ 青森県知事免許(11)第1973号 青森県十和田市西二十一番町24-21 TEL:0176-22-1726 FAX:0176-25-7271 koga@sanpoh.info |

*只今申込手続中!