| 取引種目 | 売買建物 |
|---|---|
| 問合せNo | |
| 取引態様 | 仲介 |
| 西十一番町 (北園小・三本木中学区)、中古住宅! *只今商談中! | |
| 所在地 | 十和田市西十一番町29-46
|
| 価格 | 1,375万円 |
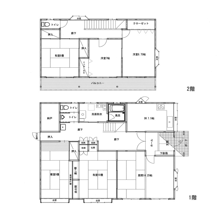
| 間取り | 6DK |
| 交通 | 市立中央病院まで約550m |
| 土地面積 | 489.59㎡ (148.1坪) |
| 他、私道面積 | |
| 建物構造 | 木造亜鉛メッキ鋼板葺2階建 |
| 建物面積 | 175.55㎡ (52.99坪) |
| 間取内訳 | 図面参照 |
| 接道状況 | 間口約18.5mが幅員約10.5mの公道に接している |
| 築年月日 | 平成9年1月 |
| 現況 | |
| 引渡時期 | いつでも可 |
| 駐車場 | 3台可 (1台 車庫) *駐車スペース限られる為、 必ず現地ご確認下さい。 |
| 土地権利 | 所有権 |
| 地目 | 宅地 |
| 都市計画 | 非線引区域 |
| 用途地域 | 第一種住居地域 |
| 建ペイ率(%) | 60% |
| 容積率(%) | 200% |
| 学区(小) | 北園小学校 (約120m) |
| 学区(中) | 三本木中学校 (約950m) |
| ガス | プロパンガス |
| トイレ | 1階 / 小便器 洋式 水洗 ウォシュレット 2階 / 洋式 水洗 ウォシュレット |
| 備考 | 付属建物(車庫/物置) / 木造亜鉛メッキ鋼板ぶき平屋建 / 22.08㎡(6.67坪) 平成30年1月 屋根塗装済! ビルトインシステムキッチン 浴室/ユニットバス(1坪タイプ) シャワー付洗面化粧台 洗面台 パネルヒーター(灯油)8台 灯油ボイラー シューズボックス 外側に水道有り 灯油ホームタンク(400ℓ) *現状での引渡しとなります。 |
| 取扱業者 | 有限会社サンポウ 青森県知事免許(11)第1973号 青森県十和田市西二十一番町24-21 TEL:0176-22-1726 FAX:0176-25-7271 koga@sanpoh.info |


































*只今商談中!