西五番町(南小・十和田中学区)、DC(デザイナーズコンパクト) B棟!
| 取引種目 | 売買建物 |
|---|---|
| 問合せNo | |
| 取引態様 | 仲介 |
| 西五番町(南小・十和田中学区)、DC(デザイナーズコンパクト) B棟! | |
| 所在地 | 十和田市西五番町331-26
|
| 価格 | 1,680万円 |
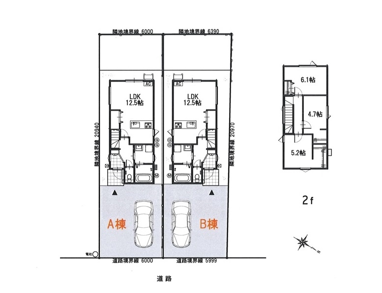
| 間取り | 3LDK |
| 交通 | 十和田警察署まで約130m |
| 土地面積 | 129.92㎡ (39.30坪) |
| 他、私道面積 | |
| 建物構造 | 2×4工法 2階建 |
| 建物面積 | 延床面積/76.38㎡(23.10坪) 施工面積/78.87㎡(23.85坪) |
| 間取内訳 | 図面参照 |
| 接道状況 | 幅員6.0mの公道に接している |
| 築年月日 | 令和6年4月 |
| 現況 | |
| 引渡時期 | いつでも可 |
| 駐車場 | 有 (コンクリート舗装) |
| 土地権利 | 所有権 |
| 地目 | 宅地 |
| 都市計画 | 非線引区域 |
| 用途地域 | 第一種低層住居専用地域 |
| 建ペイ率(%) | 50% |
| 容積率(%) | 80% |
| 学区(小) | 南小学校 (約600m) |
| 学区(中) | 十和田中学校 (約1.8km) |
| ガス | プロパンガス |
| トイレ | 洋式 水洗 ウォシュレット |
| 備考 | 高性能エアコン1台 ガス給湯器(省エネタイプ) シャワー付洗面化粧台 カラーモニター付インターホン ビルトインシステムキッチン シューズボクス カーテンレール 屋外用防水コンセント/EV・PHPV充電用屋外コンセント有り 外側に水道有り 浴室(追いだき機能付) 郵便ポスト TVアンテナ 建築施工 ㈱ジェイホーム |
| 取扱業者 | 有限会社サンポウ 青森県知事免許(11)第1973号 青森県十和田市西二十一番町24-21 TEL:0176-22-1726 FAX:0176-25-7271 koga@sanpoh.info |

































