メゾネットタイプ ウエスト ヴィラ A-3号室
| 取引種目 | 賃貸アパート |
|---|---|
| 問合せNo | |
| 取引態様 | 仲介 |
| メゾネットタイプ ウエスト ヴィラ A-3号室 | |
| 所在地 | 十和田市西二十二番町44-38
|
| 賃料 | 3.5万円 |
| 共益費 | 無 |
| 敷金 | 2ヶ月 |
| 管理費 | 無 |
| 仲介料 | 1ヶ月+消費税 |
| 礼金 | 無 |
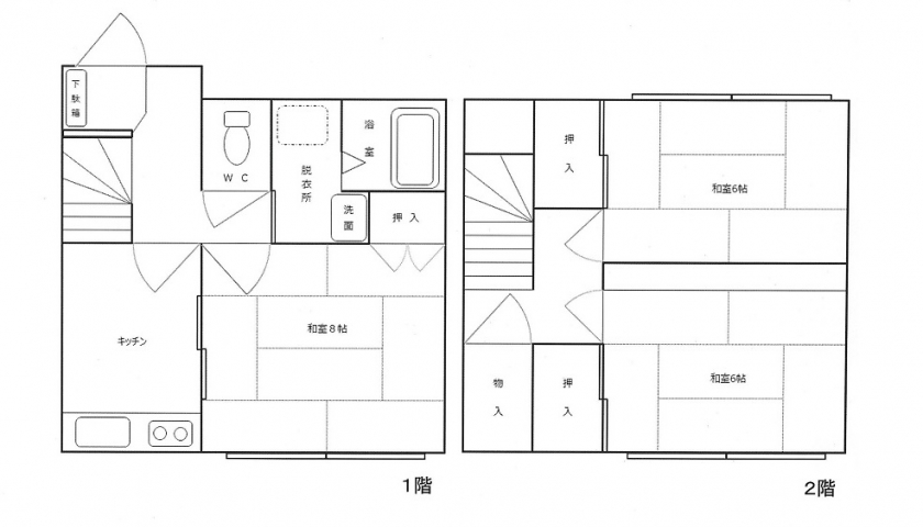
| 間取り | 3K |
| 交通 | 薬王堂(ドラッグストア) 十和田三本木店まで約350m |
| 専有面積 | 65.4㎡ |
| 構造 | 木造 |
| 築年月日 | 平成4年 |
| 階 | |
| ベランダ | 無 |
| 入居可能日 | 即入居可 |
| 駐車場 | 1台可 |
| ペット | 不可 |
| 保険 | 要加入 |
| バス | ユニットバス (シャワー有) |
| トイレ | 洋式 水洗 ウォシュレット |
| 設備 | 洗面化粧台 ガス給湯器 プロパンガス |
| 備考 | 台所4帖 和室8帖 和室6帖×2 <全2棟 / 9世帯> A-3号室…A棟(中部屋) シューズボックス 物置(外側/スチール) 駐輪場 *入居時、保証会社契約が必要となります。 (別途、保証料がかかります。) 北園小・三本木中学区 |
| 取扱業者 | 有限会社サンポウ 青森県知事免許(11)第1973号 青森県十和田市西二十一番町24-21 TEL:0176-22-1726 FAX:0176-25-7271 koga@sanpoh.info |

































